សម្ភារៈ: ម្សៅ-បន្ទះស្រោប (ការកំណត់រចនាសម្ព័ន្ធស្តង់ដារ)
វិធីបើកទ្វារ៖ រចនាប័ទ្មបំបែក
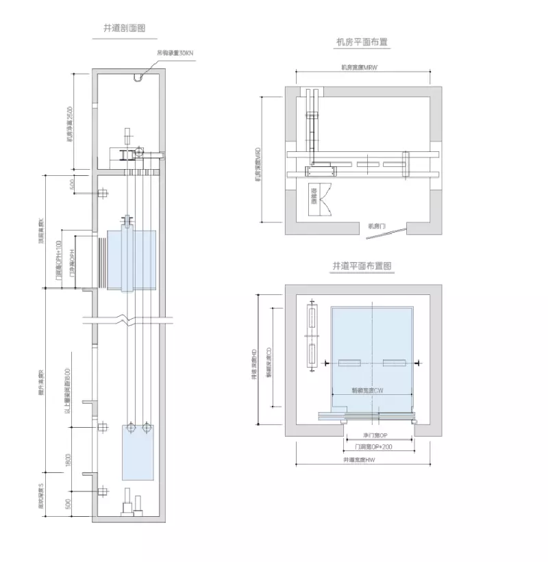
ដ្យាក្រាមវិស្វកម្មសំណង់ស៊ីវិលនៃជណ្តើរយន្តបន្ទប់ម៉ាស៊ីន (២:១)


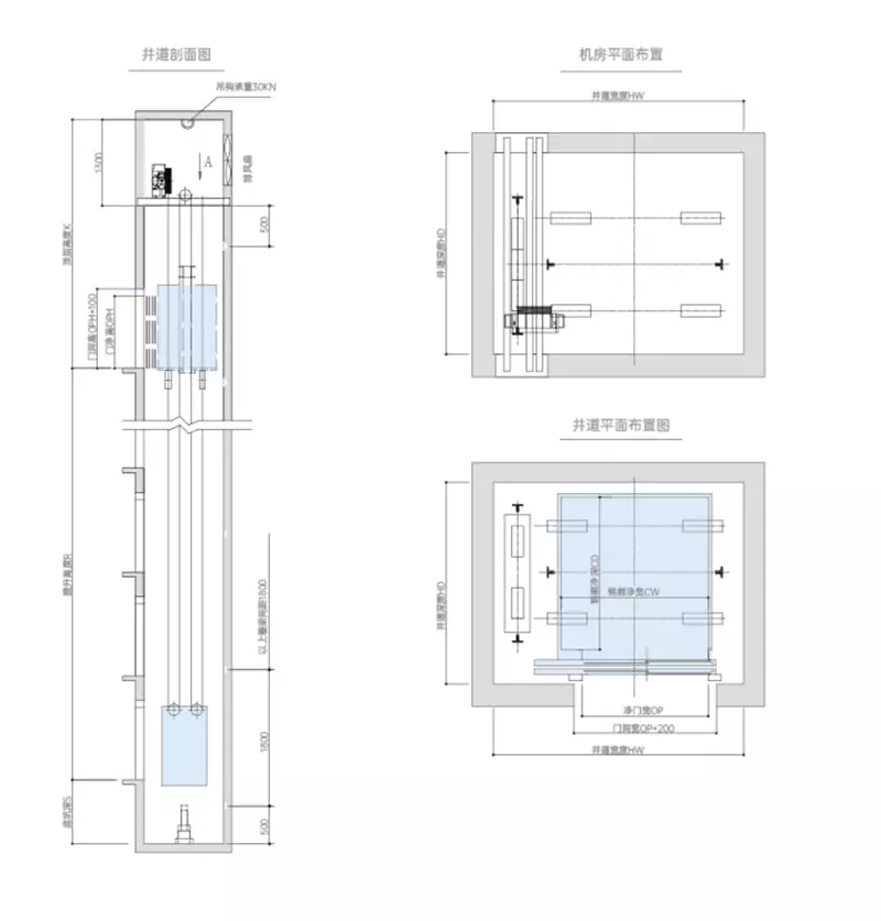
ដ្យាក្រាមវិស្វកម្មសំណង់ស៊ីវិលនៃជណ្តើរយន្តបន្ទប់ម៉ាស៊ីន (៤:១)


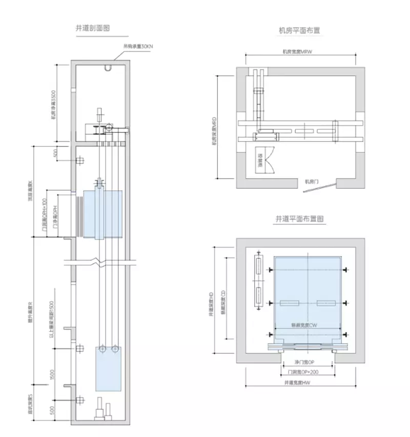
ដ្យាក្រាមវិស្វកម្មសំណង់ស៊ីវិលរបស់ម៉ាស៊ីន-បន្ទប់-ជណ្តើរយន្តដឹកទំនិញតិច (៤:១)


ដ្យាក្រាមវិស្វកម្មសំណង់ស៊ីវិលធំ-ជណ្តើរយន្តដឹកទំនិញដឹកទំនិញ (៤:១)


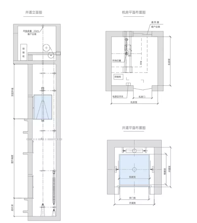
គំនូរវិស្វកម្មសំណង់ស៊ីវិលនៃជណ្តើរយន្តសេវាកម្ម

