សម្ភារៈ: ដែកអ៊ីណុកសក់ (ស្រេចចិត្ត)
វិធីបើកទ្វារ៖ រចនាប័ទ្មបំបែកទ្វេ
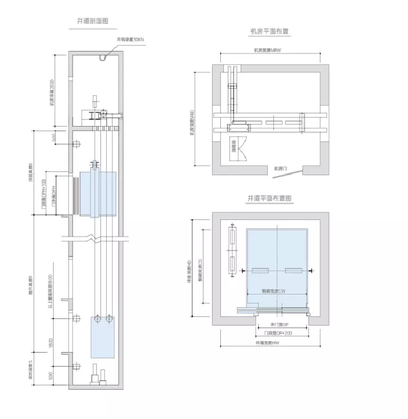
ដ្យាក្រាមវិស្វកម្មសំណង់ស៊ីវិលនៃជណ្តើរយន្តបន្ទប់ម៉ាស៊ីន (២:១)


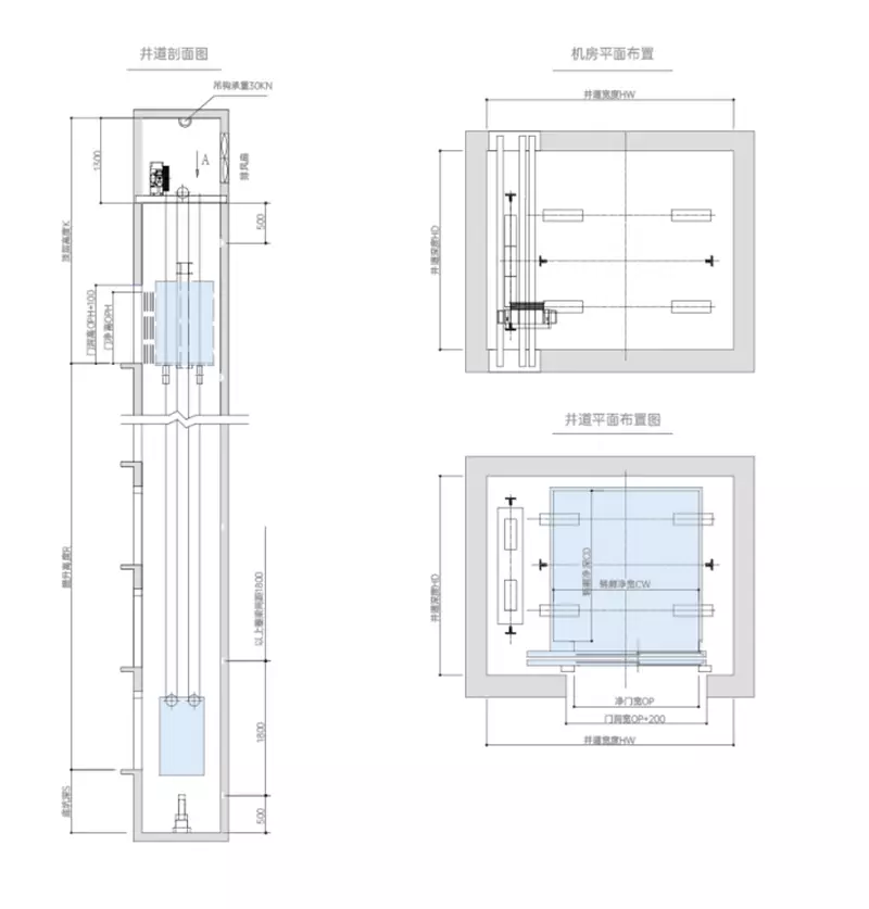
ដ្យាក្រាមវិស្វកម្មសំណង់ស៊ីវិលនៃជណ្តើរយន្តបន្ទប់ម៉ាស៊ីន (៤:១)


ដ្យាក្រាមវិស្វកម្មសំណង់ស៊ីវិលរបស់ម៉ាស៊ីន-បន្ទប់-ជណ្តើរយន្តដឹកទំនិញតិច (៤:១)


ដ្យាក្រាមវិស្វកម្មសំណង់ស៊ីវិលធំ-ជណ្តើរយន្តដឹកទំនិញដឹកទំនិញ (៤:១)


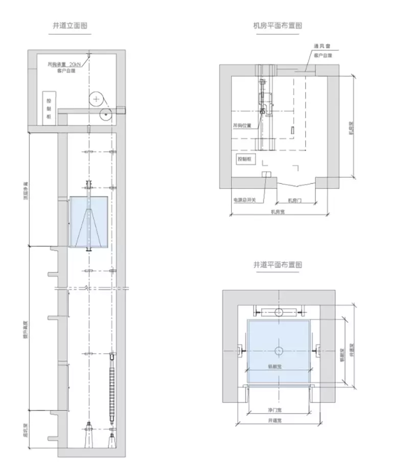
គំនូរវិស្វកម្មសំណង់ស៊ីវិលនៃជណ្តើរយន្តសេវាកម្ម

