Siling: Keluli tahan karat garis rambut, lampu LED
Pengudaraan: Kipas aliran paksi
Pintu kerusi sedan: Rambut-keluli tahan karat bercorak
Dinding kereta: Rambut-keluli tahan karat bertekstur
Handrail: Keluli tahan karat rata
Lantai: PVC
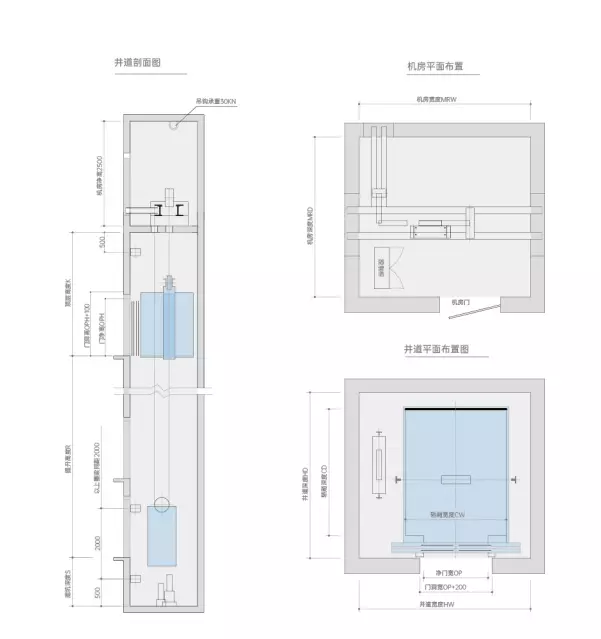
Gambarajah skematik kejuruteraan awam untuk lif perubatan

