Bahan: Serbuk-papan bersalut (konfigurasi standard)
Kaedah pembukaan pintu: Jenis bukaan sisi
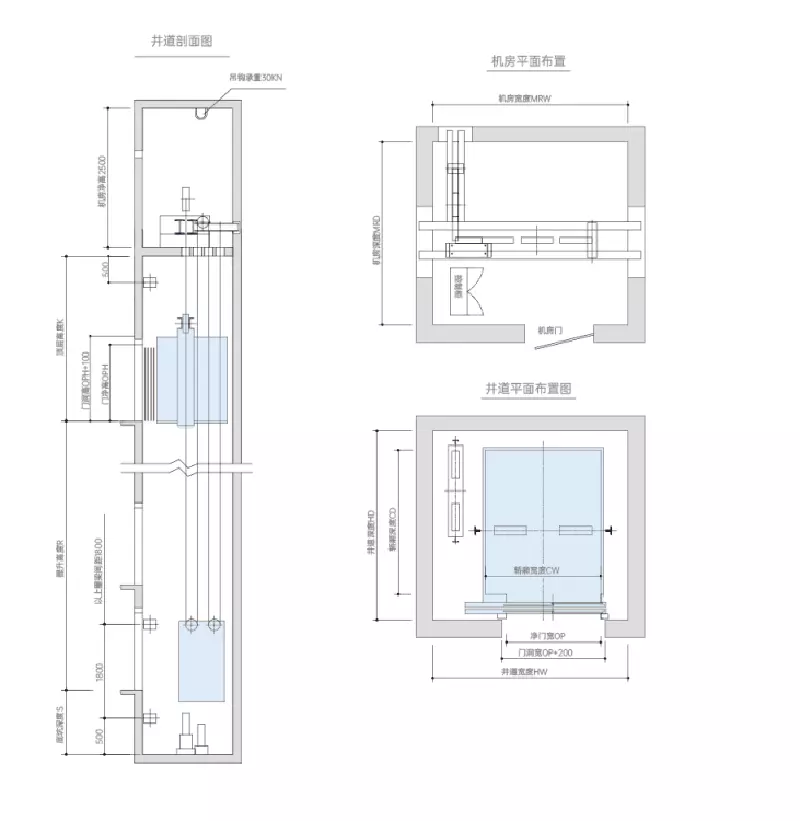
Gambarajah skematik kejuruteraan awam lif barang bilik mesin (2:1)


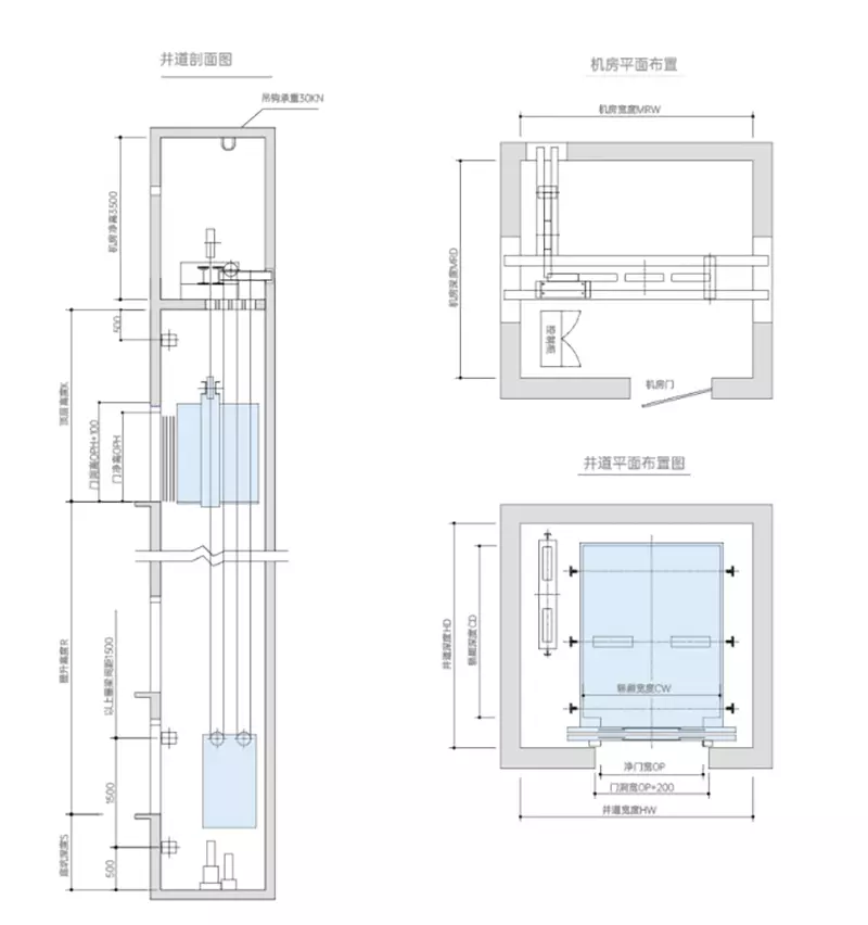
Gambarajah skematik kejuruteraan awam lif barang bilik mesin (4:1)


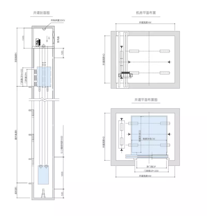
Gambarajah skematik kejuruteraan awam mesin-bilik-kurang lif barang (4:1)


Gambarajah skematik kejuruteraan awam besar-lif pengangkutan tan (4:1)


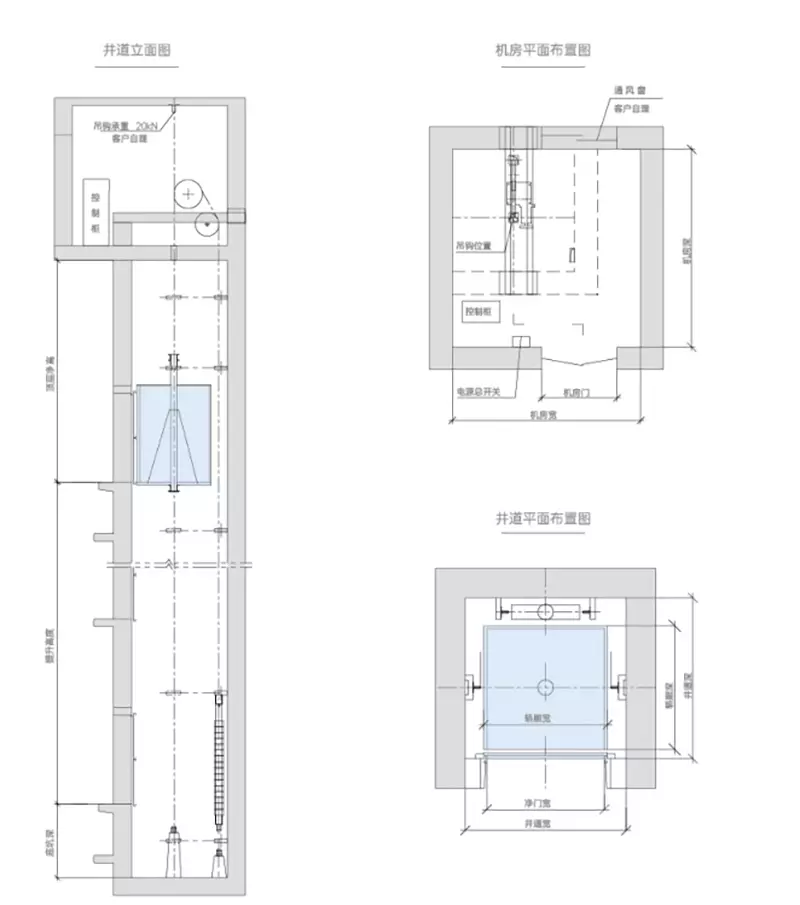
Lukisan kejuruteraan awam lif perkhidmatan

