ផ្ទហ ផលិតផល ស៊េរី TE ជណ្តើរយន្តពេទ្យ
ពិដាន៖ ដែកអ៊ីណុកសក់ អំពូល LED
ខ្យល់: កង្ហារលំហូរអ័ក្ស
ទ្វារកៅអីរថយន្ត : សក់-ដែកអ៊ីណុកដែលមានលំនាំ
ជញ្ជាំងឡាន: សក់-ដែកអ៊ីណុកវាយនភាព
Handrail: ដែកអ៊ីណុកសំប៉ែត
កម្រាលឥដ្ឋ: PVC
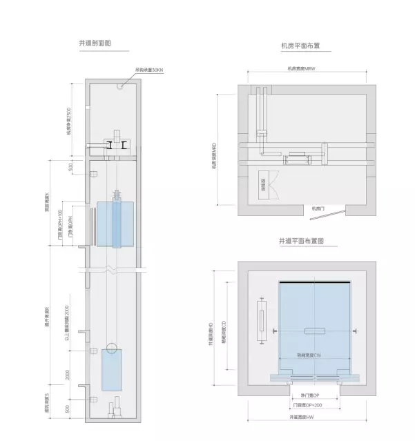
ដ្យាក្រាមគ្រោងការណ៍នៃវិស្វកម្មសំណង់ស៊ីវិលសម្រាប់ជណ្តើរយន្តពេទ្យ
ចាដមបុង: មិនមានទៀតទេ
បន្ទាប់បិនេហ: ធី-Y2301
សុវត្ថិភាព, ថាមពល-ការសន្សំ មានសុខភាពល្អ និងឆ្លាតវៃ N400 ដែលផលិតដោយការថែទាំយ៉ាងល្អិតល្អន់ ដើម្បីបង្កើតគុណភាពដ៏អស្ចារ្យ បង្ហាញខ្លួនជាលើកដំបូង
អាស៊ី-ជណ្តើរយន្តប៉ាស៊ីហ្វិក TEN៖ សិប្បកម្មបង្កើតក្តីសុបិន្ត ជំនាញឈ្នះអនាគត!
តើបញ្ហាអ្វីខ្លះដែលគួរកត់សម្គាល់ក្នុងការថែទាំជណ្តើរយន្តប្រចាំថ្ងៃ?
តើអ្វីជាបាតុភូតកំហុសទូទៅ និងមូលហេតុនៃប្រព័ន្ធមេកានិចនៃជណ្តើរយន្ត
អាជីវកម្មដំឡើងជណ្តើរយន្តកំពុងមានសន្ទុះខ្លាំង ហើយមួយពាន់ពាន់លាន-ទីផ្សារប្រាក់យន់កំពុងរង់ចាំការរុករក
ធី-T2301
ធី-T2302
ធី-T2303
ធី-T2304
ធី-T2305