ផ្ទហ ផលិតផល ជណ្តើរវីឡា លើកទ្វារចូល
ស្តង់ដារជាមួយនឹង Optianol, ស្រាសំប៉ាញមាស etched
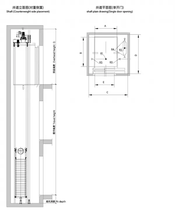
គំនូរវិស្វកម្មសំណង់ស៊ីវិលនៃជណ្តើរយន្តវីឡា
គំនូរវិស្វកម្មសំណង់ស៊ីវិល សម្រាប់ការដំឡើងជណ្តើរយន្ត (បន្ទប់ម៉ាស៊ីនតូច)
គំនូរវិស្វកម្មសំណង់ស៊ីវិល សម្រាប់ការដំឡើងជណ្តើរយន្ត (ដោយគ្មានបន្ទប់ម៉ាស៊ីន)
ចាដមបុង: TN-M2305
បន្ទាប់បិនេហ: TN-M2301
សុវត្ថិភាព, ថាមពល-ការសន្សំ មានសុខភាពល្អ និងឆ្លាតវៃ N400 ដែលផលិតដោយការថែទាំយ៉ាងល្អិតល្អន់ ដើម្បីបង្កើតគុណភាពដ៏អស្ចារ្យ បង្ហាញខ្លួនជាលើកដំបូង
អាស៊ី-ជណ្តើរយន្តប៉ាស៊ីហ្វិក TEN៖ សិប្បកម្មបង្កើតក្តីសុបិន្ត ជំនាញឈ្នះអនាគត!
តើបញ្ហាអ្វីខ្លះដែលគួរកត់សម្គាល់ក្នុងការថែទាំជណ្តើរយន្តប្រចាំថ្ងៃ?
តើអ្វីជាបាតុភូតកំហុសទូទៅ និងមូលហេតុនៃប្រព័ន្ធមេកានិចនៃជណ្តើរយន្ត
អាជីវកម្មដំឡើងជណ្តើរយន្តកំពុងមានសន្ទុះខ្លាំង ហើយមួយពាន់ពាន់លាន-ទីផ្សារប្រាក់យន់កំពុងរង់ចាំការរុករក
ចលនាដើរ
ធី-T2301
ធី-T2302
ធី-T2303
ធី-T2304