Materiale: acciaio inossidabile sottile (facoltativo)
Metodo di apertura della porta: tre-piega in stile diviso
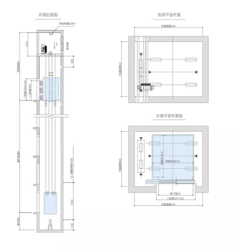
Schema schematico di ingegneria civile del montacarichi della sala macchine (2:1)


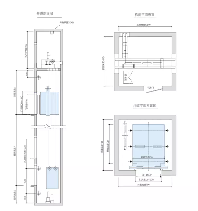
Schema schematico di ingegneria civile del montacarichi della sala macchine (4:1)


Schema schematico di ingegneria civile della macchina-stanza-meno montacarichi (4:1)


Diagramma schematico di ingegneria civile di grandi dimensioni-montacarichi di tonnellaggio (4:1)


Disegno di ingegneria civile dell'ascensore di servizio
