Uasteorainn: cruach dhosmálta Hairline, soilsiú LED
Aeráil: lucht leanúna sreabhadh aiseach
Doras cathaoir Sedan: Gruaig-cruach dhosmálta patrúnaithe
Balla an chairr: Gruaig-cruach dhosmálta uigeach, scáthán-cruach dhosmálta críochnaithe
Ráille láimhe: ráille láimhe cothrom cruach dhosmálta
Flooring: PVC
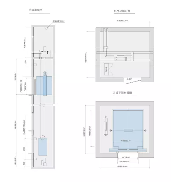
Léaráid scéimreach innealtóireachta sibhialta d'ardaitheoir paisinéirí

