Uasteorainn: Uasteorainn scátháin chomhtháite, daingneáin soilsithe aicrileach
Doras an chairr: Gruaig-cruach dhosmálta uigeach, scáthán-cruach dhosmálta críochnaithe, scáthán-cruach dhosmálta eitseáilte
Balla an chairr: Gruaig-cruach dhosmálta uigeach
Ráille láimhe: Níl aon cheann
Flooring: PVC
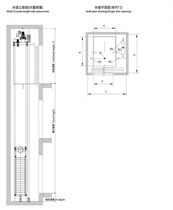
Líníocht innealtóireachta sibhialta den ardaitheoir Villa


Líníocht innealtóireachta sibhialta le haghaidh suiteáil ardaitheoirí (seomra meaisín beag)



Líníocht innealtóireachta sibhialta le haghaidh suiteáil ardaitheoirí (gan seomra meaisín)


